Réf. SEL79
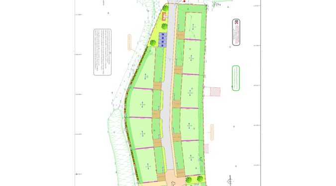
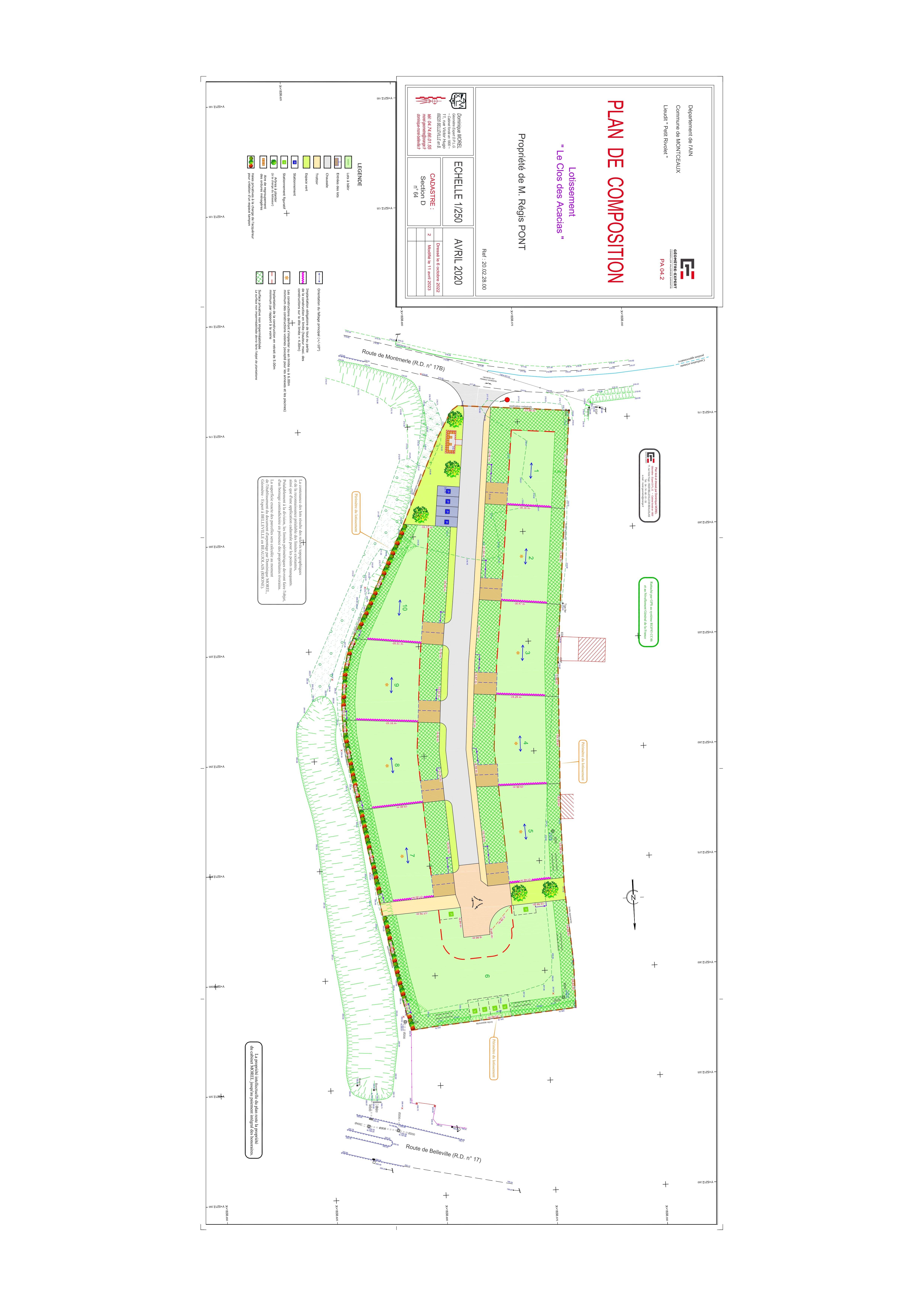
Montceaux – Le Clos des Acacias
À partir de 79 900€
Description Montceaux – Le Clos des Acacias
Saisissez cette opportunité !
Dans un cadre paisible et verdoyant, découvrez ce lotissement pour votre projet de construction.
Libre constructeur : réalisez la maison de vos rêves
Viabilisé (eau, électricité, Télécom, eaux usées, eaux pluviales ...)
Ne manquez pas cette occasion unique de bâtir votre maison dans un environnement privilégié !
Contactez-nous dès aujourd’hui pour plus d’informations ou organiser une visite.
Détails du bien
Surface
400 m²Type de chauffage
Pompe à chaleurVille
MontceauxNom du commercial
SEFITelephone
06 81 60 26 80
Découvrez le quartier du programme
Centre d'intérêts
Comparer les lots
Surface
Prix
Référence
De 301 à 400m²
79 900€
Référence
400m²
79 900€
SEL79L001
