Saint Georges de Reneins
Description Saint Georges de Reneins
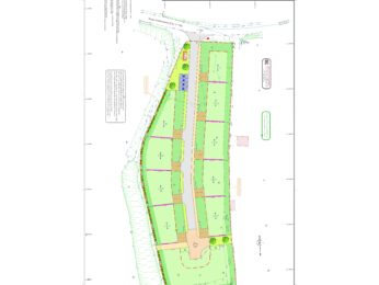
Construisez votre maison sur mesure à Saint-Georges-de-Reneins, entre nature, dynamisme et accessibilité
Vous rêvez d’un cadre de vie paisible, verdoyant et bien connecté pour bâtir la maison qui vous ressemble ? Découvrez ce terrain viabilisé à Saint-Georges-de-Reneins, une commune prisée du Beaujolais, à seulement 8km de Villefranche-sur-Saône et à moins de 40 minutes de Lyon.
Un terrain prêt à bâtir dans un environnement privilégié
• Terrain viabilisé, libre constructeur
• Grand parc paysagé à proximité, idéal pour les balades et les moments en famille
• Aires de jeux pour les enfants, dans un cadre sécurisé et convivial
Un projet sur mesure
• Liberté de choisir votre maison
• Eligibilité au Prêt à Taux Zéro (PTZ) pour faciliter votre financement
• Une opportunité de devenir propriétaire dans un cadre valorisant
Un équilibre parfait entre nature et vie active. Saint-Georges-de-Reneins séduit par son atmosphère paisible, son dynamisme local et sa proximité avec les grands pôles urbains.
Contactez-nous dès maintenant pour en savoir plus !
Détails du bien
Surface
398 à 827 m²Type de chauffage
GazVille
Saint Georges de ReneinsDate de disponibilité
2ème semestre 2023Nom du commercial
SEFITelephone
06 81 60 26 80
Découvrez le quartier du programme
Centre d'intérêts
La commune de Saint Georges de Reneins
- Gare TER à proximité pour rejoindre Lyon rapidement
- Accès facile à l’autoroute A6 via Villefranche Nord
